

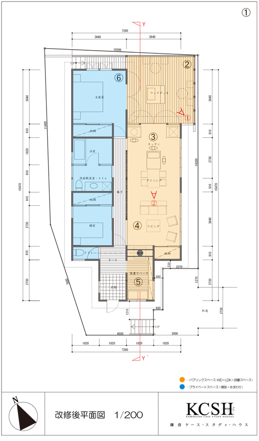
計画概要
家の中心は家族が集まれる開放感のあるキッチン。
休日は友人を招いて庭のウッドデッキでBBQを楽しめる家へ!
①【全体計画】
この住宅で一番大切にした空間はキッチンです。
『食』を通じて、家族との会話やふれ合いが生まれる空間を演出しました。
②【ウッドデッキ】
鎌倉生活の醍醐味!
木漏れ日の中で、家族や友人を招いてバーベキューを楽しめる外部空間です。
③【キッチン・ダイニング】
アイランド型キッチンを囲んで、家族みんなでクッキング!
会話が弾むリビングのような食卓に。
④【リビング】
食事の後は、暖炉を囲みながらゆったりと寛げる広々としたリビングへ。
⑤【読書スペース】
暖炉の炎を見ながらゆっくりと本が読める静かな空間をつくりました。
⑥【寝室・水まわり】
既存の配置を生かしました。柔かい光に満たされた、疲れた体をリフレッシュできる空間です。