#3 浄明寺 洋風窓の家販売終了リノベーション提案
yoken_on
タブ

現況写真

現況写真2

現況写真3

現況4

現況5

現況6

谷戸を背負う、閑静な住宅地の一番奥の敷地である。

日照は谷戸の住宅地の奥ということもあって少し乏しい印象だが、敷地は比較的高い位置にあり、通風は良好である。

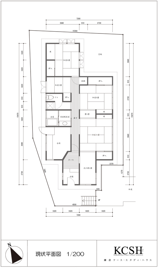
建物は洋風の窓が特徴的な平屋の日本家屋で、玄関に入ると、中廊下が奥の部屋まで続き、左右に各機能の部屋が並ぶ構成。奥に行くにつれてプライバシーの度合いが高くなるようだ。

最も奥の和室にはしっかりとした床柱を持つ床が設置されていた。おそらく、普段のお客は次の間で対処し、大事なお客は中廊下で一気にこの部屋に通し、泊まってもらうことができたように思える。

内部の通風は良さそうである。ただ、光があまり届いておらず全体的に少々暗い印象。 
床もたわんでいるため修復の必要がある。

水まわりは北側に配置されているが、西からの光が届き思いのほか明るい。

敷地の奥には庭に適した空地がある。

 

ポイント現況平面図現況図面

ポイント物件概要
物件種目 中古一戸建
最寄駅 鎌倉
間取タイプ 3LDK
価 格 1300万円 
販売は終了しました
物件所在地 鎌倉市浄明寺4丁目
交 通 横須賀線 鎌倉駅
バス9分 青砥橋バス停徒歩5分
土地面積 162.75平米 (49.23坪)
他に私道面積 12㎡
建 物 構造・規模 木造平屋建て
面 積 89.44㎡
土地権利 旧法借地権
地 目 宅地
都市計画 市街化区域
用途地域 第一種低層住居専用地域
建ぺい率 40%
容積率 80%
他の法令
上の制限
第二種風致地区・宅地造成工事規制区域・景観法・文化財保護法
築年月 不詳
駐車場 なし
現 況 現状渡し(古屋あり)
引渡日 相談
接道状況 東南側43条但し書空地
設 備 都市ガス・水道・公共下水
備 考 借地契約面積174.86㎡(52.86坪)
旧法非堅固専用住宅目的新規20年
地代 坪単価245円/月額

ポイント物件情報提供:御成不動産 神奈川県知事免許(10)第7900号

 

ポイント物件およびケース・スタディ・ハウスのプランについては、
以下の方法でお問い合わせください。

ポイントメールでのお問い合わせ
メールでお問い合わせ

ポイントお電話でのお問い合わせ(平日 10:00~17:30)
お電話でのお問い合わせ

一級建築士事務所  studio acca (ストゥディオ・アッカ)

鎌倉 西御門サローネ

© studio acca. All Rights Reserved.